項目概況

▲地基現狀
地基臨路,周邊民居基本上都是二層,偶有三層顯得有些格格不入,業(yè)主希望房子簡單不張揚。
本項目總建筑面積283.8㎡,其中一層和二層建筑面積均為151.9㎡,三層建筑面積131.9㎡。
戶型設計

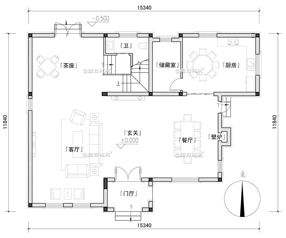
▲一層平面圖
一層:門廳、玄關、客廳、廚房、餐廳、儲藏室、衛(wèi)生間茶座;

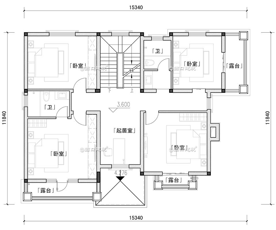
▲二層平面圖
二層:一套房帶衛(wèi)、三臥室、一公衛(wèi)、一起居室、三露臺;
造型設計

▲東南角鳥瞰圖

▲西北角鳥瞰圖

▲南立面透視圖

▲東立面透視圖

▲西立面透視圖

▲北立面透視圖
END