項目概況
業(yè)主希望建一棟高標準的住宅,房間不需要多單一定要大,接近于酒店大套房的標準。整體布局以三合院的形式,下沉庭院。
本項目總建筑面積2054.2㎡,其中一層建筑面積692.6㎡,二層697.4㎡,三層面積664.2㎡。

▲總平面圖
戶型設計

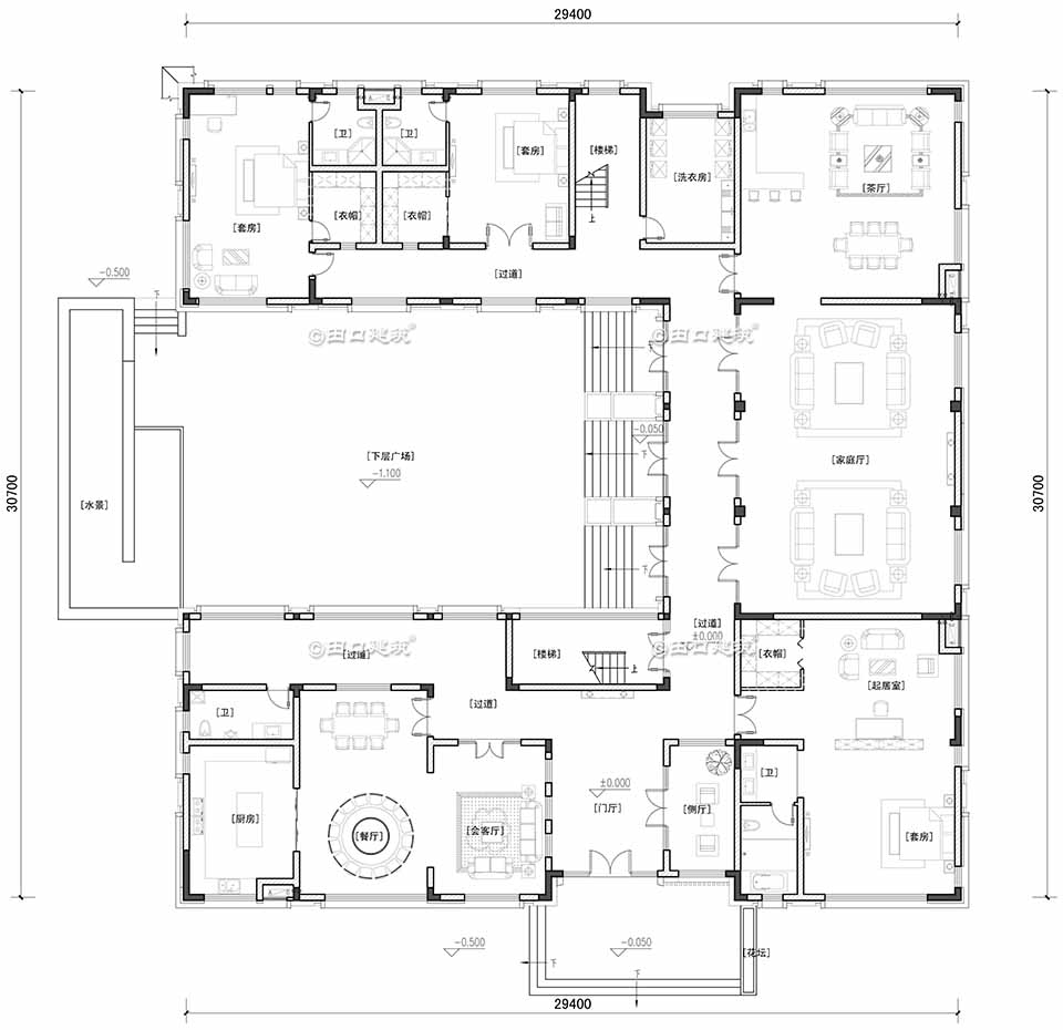
▲一層平面圖
門廳、側廳、會客廳、廚房、大小餐廳、公衛(wèi)、家庭廳、茶廳、洗衣房、三套房帶衛(wèi)衣帽間(其中一間帶起居室);

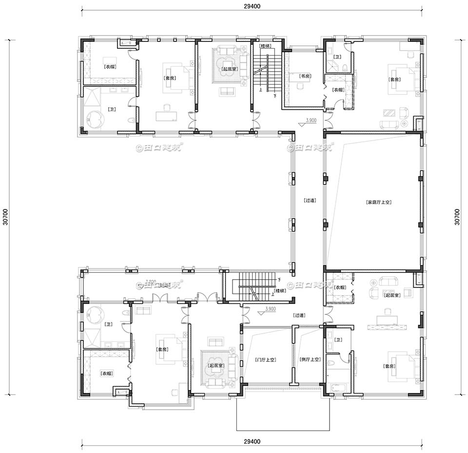
▲二層平面圖
四套房帶衛(wèi)衣帽間起居室(其中一間帶書房);

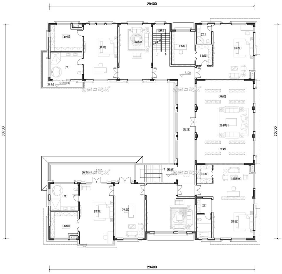
▲三層平面圖
四套房帶衛(wèi)衣帽起居室(其中兩間帶書房)、圖書廳、露臺;
造型設計

▲西南角鳥瞰圖

▲院外南立面透視圖

▲南立面透視圖

▲西立面透視圖

▲院外西立面透視圖

▲東立面透視圖

▲北立面透視圖

▲西南角透視圖

▲西北角透視圖

▲院外南立面透視圖
END