項目概況
此房子位于海南,海南屬于熱帶氣候,日照比較強,故最開始設計時就建議客戶做新亞洲風格。新亞洲風格有個明顯的特征就是屋檐大,盡可能多的遮擋一些陽光,同時略帶一些中式的味道。
本項目總建筑面積411.8㎡,其中一層建筑面積170.8㎡,二層148.7㎡,三層面積92.3㎡。

▲總平面圖
戶型設計

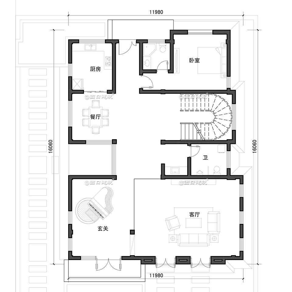
▲一層平面圖
客廳、廚房、餐廳、玄關、公衛(wèi)、臥室?guī)l(wèi);

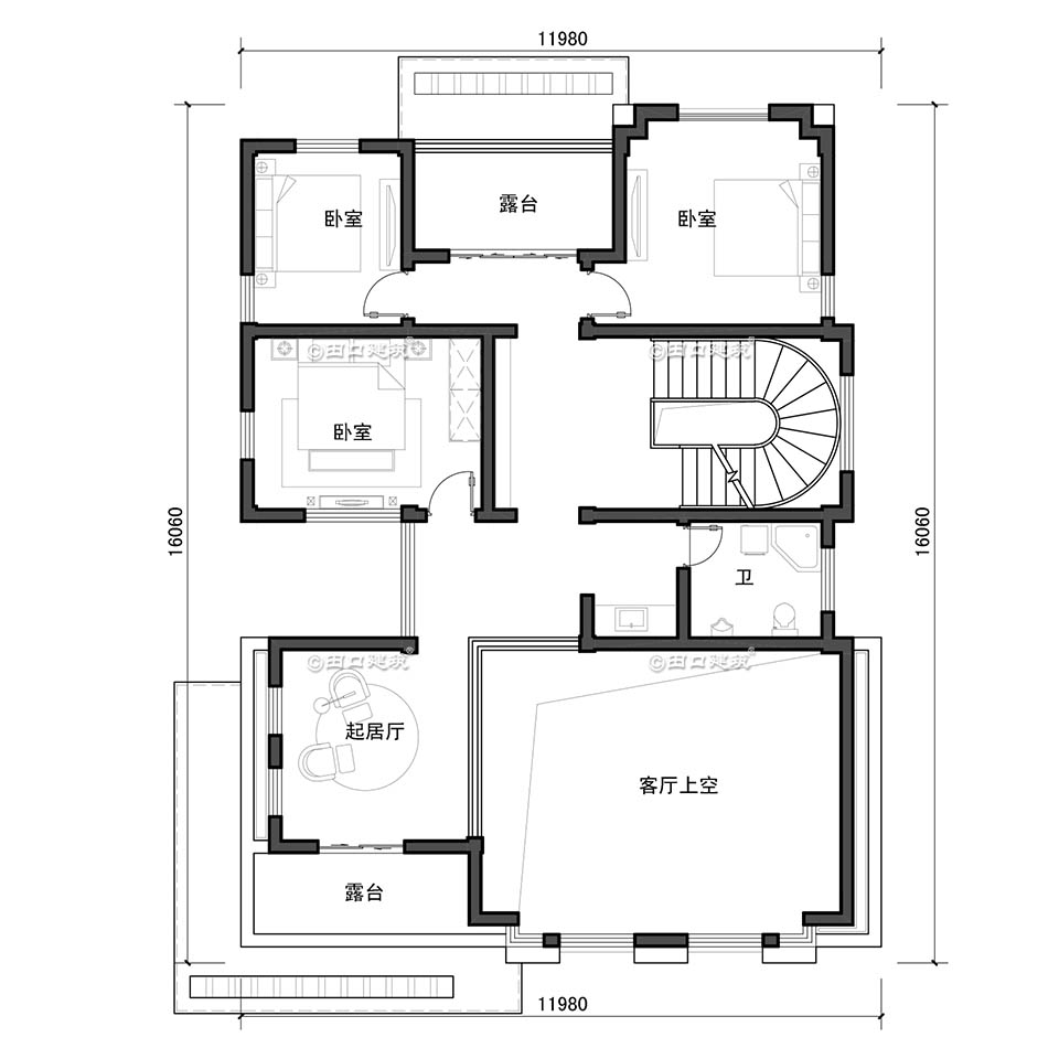
▲二層平面圖
起居室、客廳上空、三個臥室、公衛(wèi)、兩露臺;

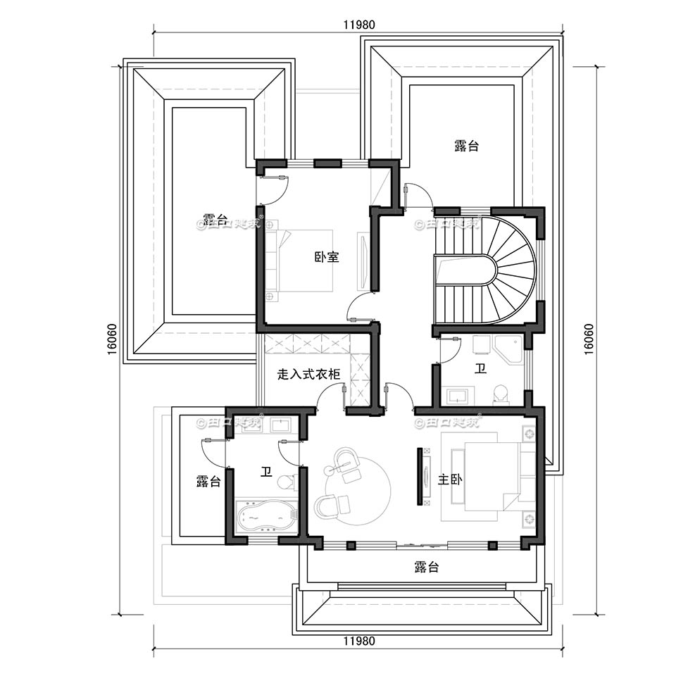
▲三層平面圖
一個大套房(帶衛(wèi)、衣帽、起居室)、一臥室、公衛(wèi)、四個露臺;
造型設計

▲西南角鳥瞰圖

▲正立面圖

▲東立面透視

▲西立面透視

▲北立面透視圖

▲西南角透視圖

▲院內東南角透視圖

▲院內西南角透視圖

▲西側通道透視圖
END