項目概況
此地基背山,正面朝向田野,且高出田野足足2米有余,從遠處看非常顯眼。業(yè)主希望設計一棟在整個村子里最獨特的房子,經(jīng)過與家人多方考慮商量,也參觀了一些已經(jīng)建成的房子,最終決定做一棟西班牙風格別墅。
此別墅占地面積222.2平方米(一層),二層218.1平方米,三層186.3平方米。

▲鳥瞰圖
戶型設計

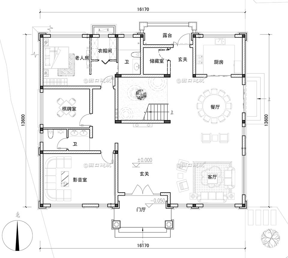
▲一層平面圖
父母房(帶衛(wèi)生間、衣帽間),客廳、廚房、大餐廳、棋牌室、影音室、玄關、公衛(wèi)、門廳;

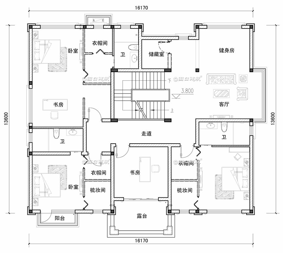
▲二層平面圖
三大套房(帶衛(wèi)生間、衣帽間、其中一個還帶書房),客廳、健身、書房、儲藏室;

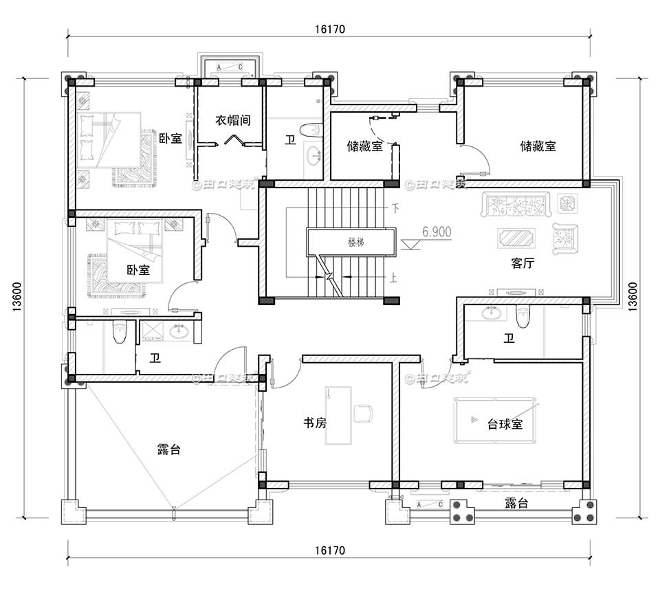
▲二層平面圖
一大套房(帶衛(wèi)生間、衣帽間)、一次臥、臺球室(帶衛(wèi)生間)、客廳、儲藏室、書房、、公衛(wèi)、大露臺;
造型設計

▲鳥瞰圖

▲南立面圖

▲南立面透視圖

▲東南角透視圖

▲西立面圖

▲北立面圖

▲東南角近景透視圖

▲西北角近景透視圖
END