項目概況
早已成家的女兒給自己的父母建房,希望房子完成后可以更多的時間帶孩子回農村體驗生活,同時也能給父母改善居住條件,住上別墅。
此別墅占地面積114.54平方米,二層114.54平方米,二層102.36平方米。

▲總平面圖
戶型設計

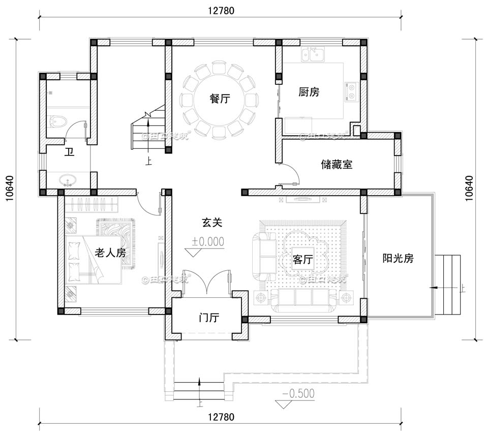
▲一層平面圖
面積不大,巧妙的設計部分空間外挑來增加室內的使用空間。門廳、玄關連通餐廳和客廳,客廳連著東邊的大院子設計了陽光房,光線非常棒,老人房靠近衛(wèi)生間,另外還設計了儲藏室,農村家庭怎么可以少了堆放糧食、酒水飲料的地方;

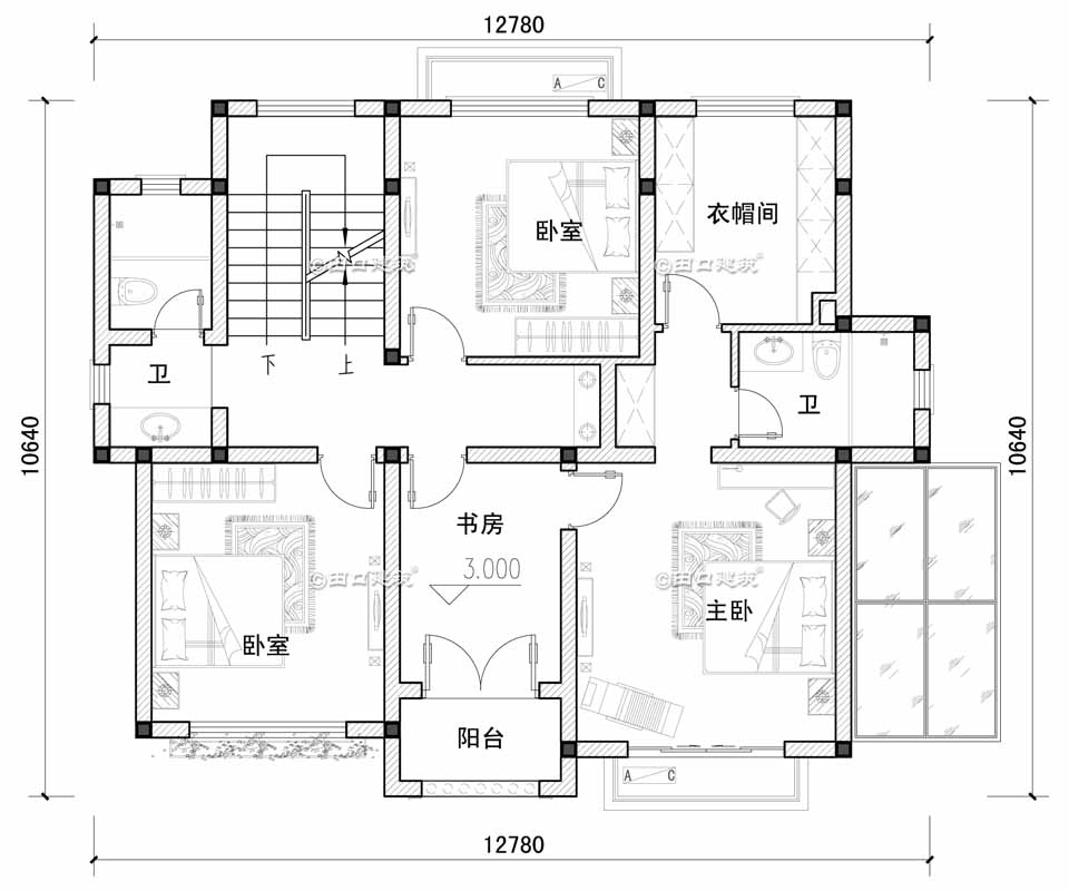
▲二層平面圖
一個大套房(帶衛(wèi)生間、書房、衣帽間、陽臺),兩臥室,一衛(wèi);

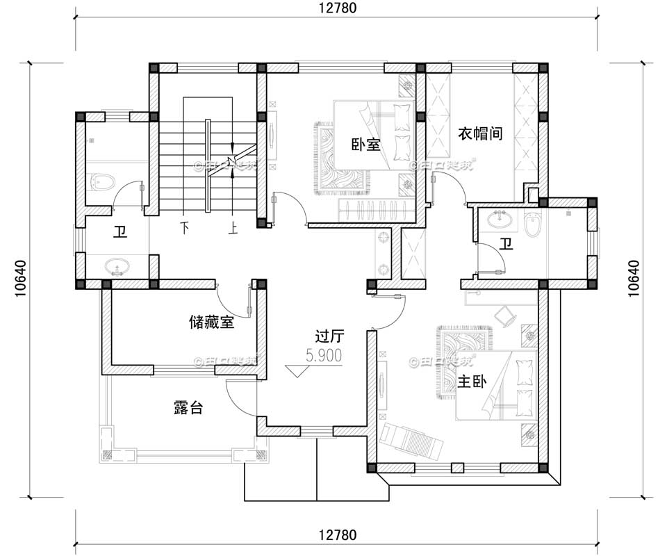
▲三層平面圖
一個套房(帶衛(wèi)生間、衣帽間)、一次臥、一公衛(wèi)、一儲藏室(露臺晾曬的東西可以臨時存放)、一露臺;
造型設計

▲鳥瞰圖

▲南立面透視圖

▲西南角整體透視圖

▲東立面透視圖

▲西立面效果圖

▲北立面透視圖

▲院子透視圖

▲西側小院門透視圖

▲院子透視圖
建成實景

▲外墻施工中
END