項目概況
本項目位于蕭山新街,總建筑面積563.84㎡,其中架空層面積為140.96平方米,一層建筑面積為140.96㎡,二層建筑面積為140.96㎡,三層建筑面積140.96㎡。

▲正立面圖
戶型設計

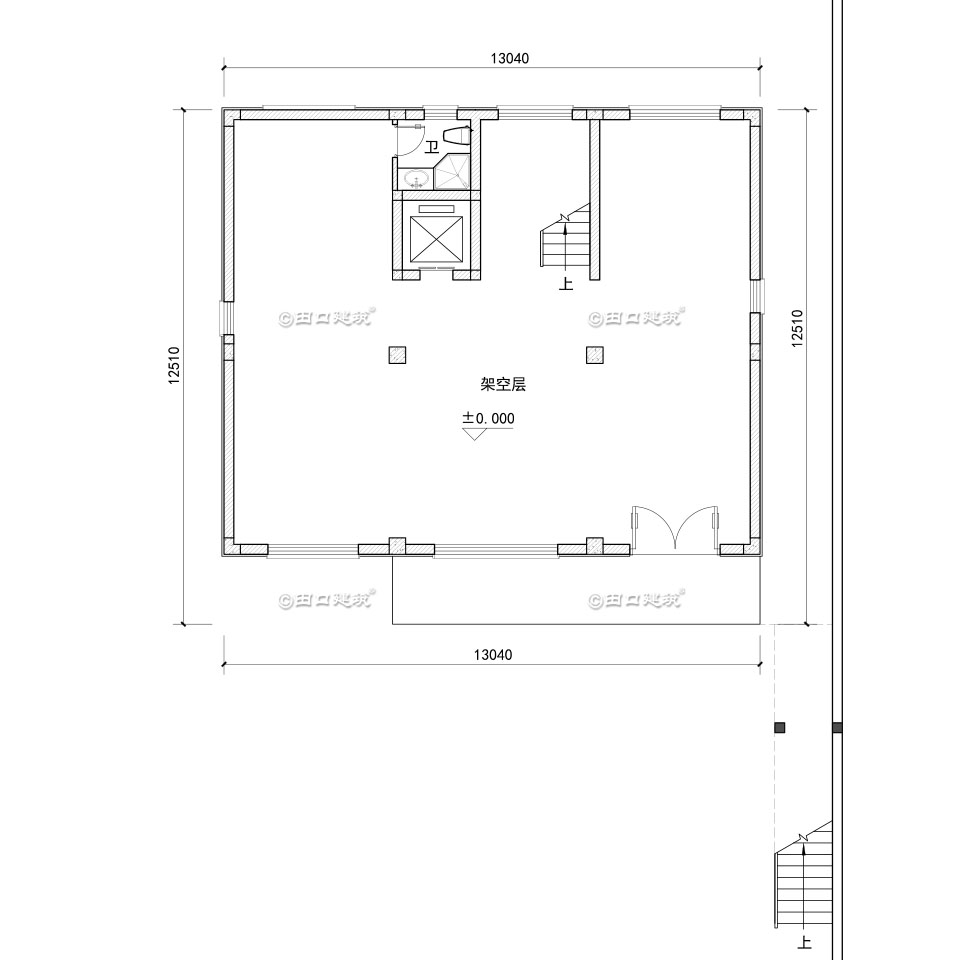
▲架空層平面圖
架空層:;

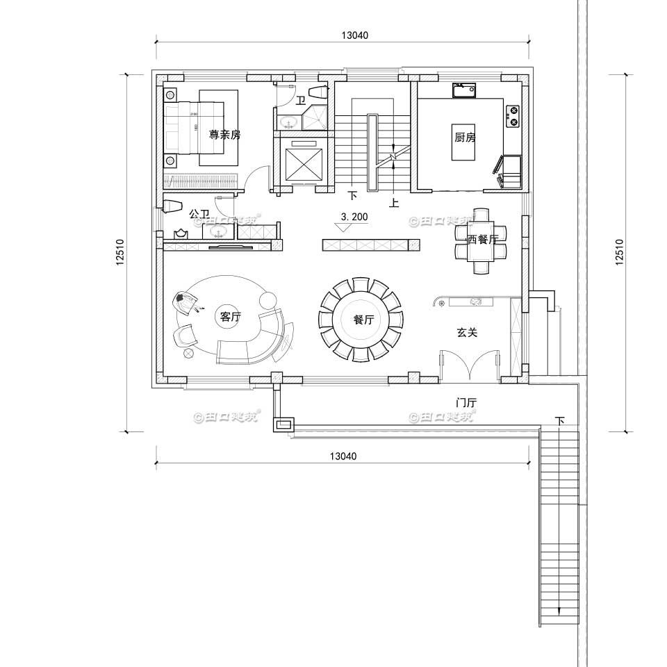
▲一層平面圖
一層:室外樓梯、門廳、玄關、客廳、大小餐廳、廚房、帶衛(wèi)套房、公衛(wèi)、電梯;

▲二層平面圖
二層:兩個客臥、一個套房、公衛(wèi)、書房、儲藏室、陽臺;

▲三層平面圖
三層:大小兩個套房、客臥、起居室、洗衣房、露臺;
造型設計

▲正立面透視圖

▲東南角透視圖

▲西南角透視圖

▲西北角透視圖

▲東北角透視圖
▲鳥瞰圖
END