項目概況
本項目位于杭州桐廬梅蓉村,總建筑面積477.11㎡,其中一層建筑面積127.18㎡,二層建筑面積為126.01㎡,三層建筑面積為126.01㎡,四層建筑面積97.91㎡。

▲鳥瞰圖
戶型設計

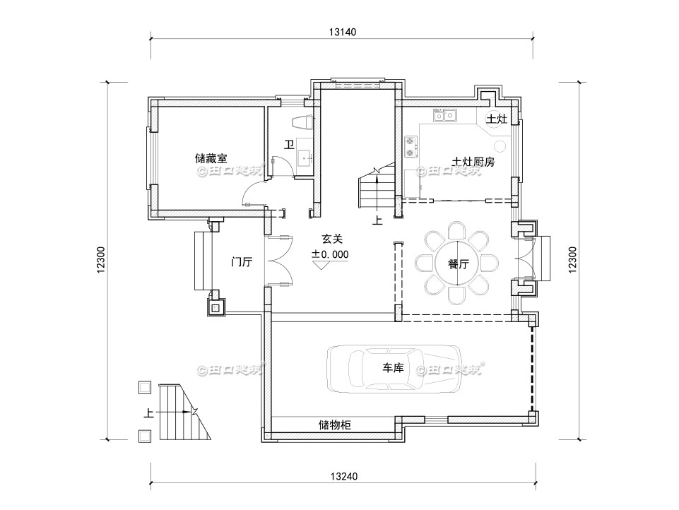
▲一層平面圖
一層:玄關、餐廳、廚房、儲藏室、公衛(wèi)、車庫;

▲二層平面圖
二層:門廳、玄關、客廳、廚房、餐廳、套房、棋牌室、公衛(wèi);

▲三層平面圖
三層:三個套間、陽臺;

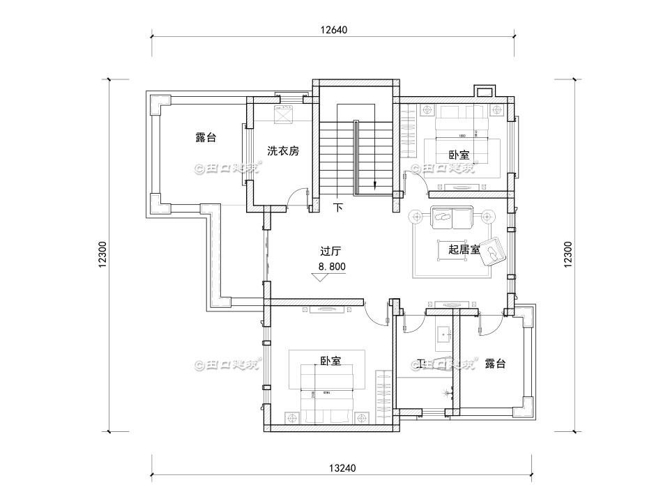
▲四層平面圖
四層:兩個臥室、起居室、洗衣房、公衛(wèi)、前后露臺;
造型設計

▲西南角鳥瞰圖

▲東北角鳥瞰圖

▲正立面透視圖


▲北立面透視圖

▲西立面透視圖

▲東北角透視
END