項目概況
本項目位于余杭中泰街道,總建筑面積472.56㎡,其中一層建筑面積為119.94㎡,二層建筑面積為119.94㎡,三層建筑面積112.74㎡,地下室建筑面積119.94㎡。

▲正立面圖
戶型設計

▲地下室平面圖
地下室:衛(wèi)生間,棋牌室、電梯、影音室、酒窖;

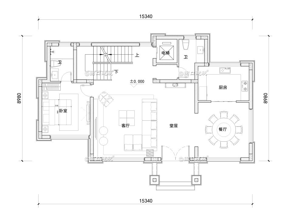
▲一層平面圖
一層:門廳、堂屋、客廳、餐廳、、廚房、套房、公衛(wèi)、電梯;

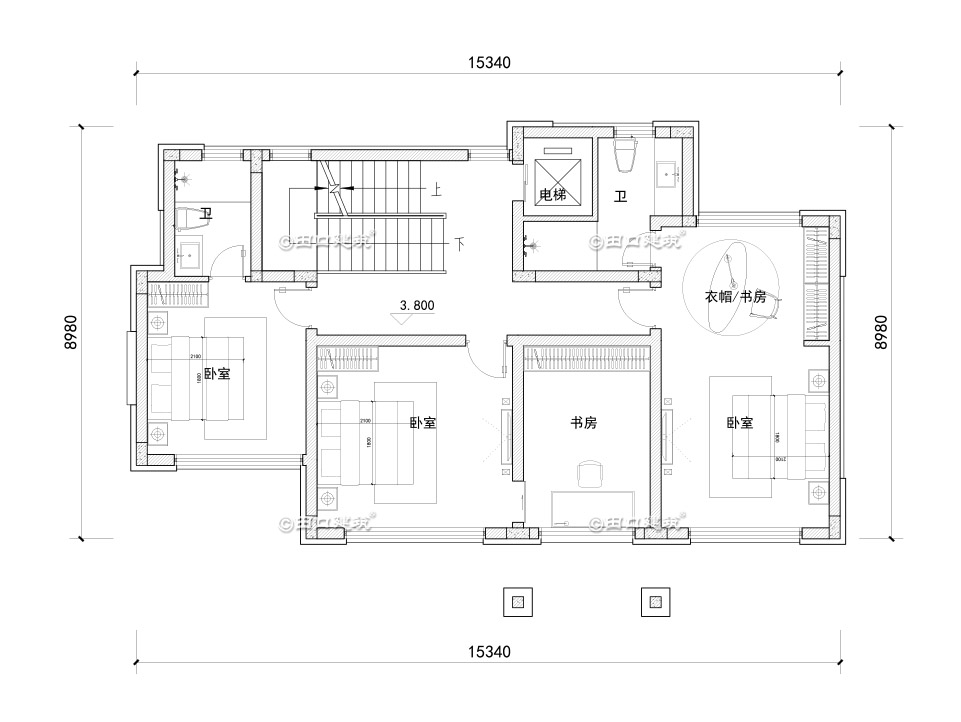
▲二層平面圖
二層:兩個帶衛(wèi)套房、臥室,書房;

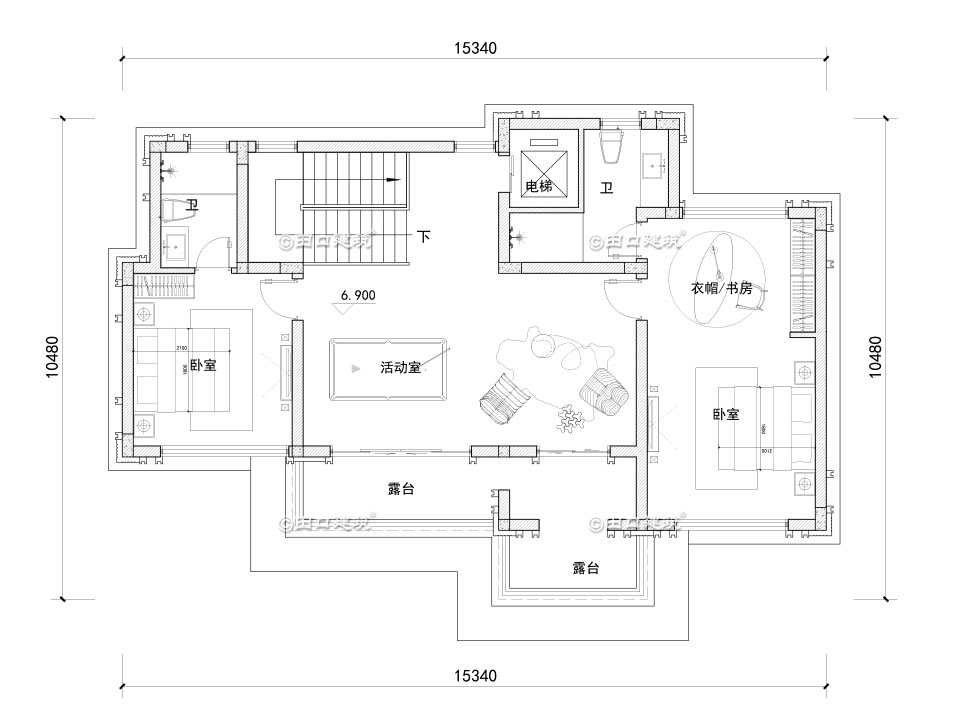
▲三層平面圖
三層:兩個帶衛(wèi)套房、活動室、露臺;
造型設計

▲正立面透視圖

▲西立面透視圖

▲西北角透視圖

▲西南角透視圖

▲西北角鳥瞰圖
▲東北角鳥瞰圖
END