項目概況
本項目位于江西余干縣,總建筑面積386.60㎡,其中一層建筑面積為124.90㎡,二層建筑面積為150.70㎡,三層建筑面積111.00㎡。

▲總平面圖
戶型設計

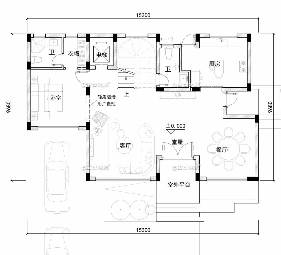
▲一層平面圖
一層:門廳、堂屋、客廳、廚房、餐廳、公衛(wèi)、套房(帶衛(wèi),衣帽間)、電梯;

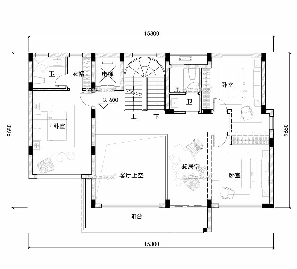
▲二層平面圖
二層:套房(帶衛(wèi)、衣帽間)、挑空客廳、兩臥室、起居室、公衛(wèi)、電梯、陽臺;
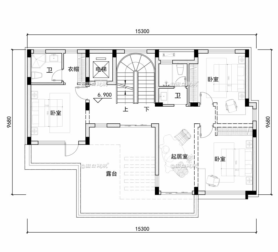
▲三層平面圖
三層:套房(帶衛(wèi)、衣帽間)、起居室、兩臥室、公衛(wèi)、電梯、大露臺;
造型設計

▲東南角鳥瞰圖

▲西北角鳥瞰圖

▲正立面透視圖

▲東南角透視圖

▲西南角透視圖

▲西北角透視圖

▲門廳透視圖

▲前院透視圖
END