項目概況
現代風格越來越受年輕人的喜愛,但是總擔心漏水和夏天的高溫怎么辦?也不是沒有辦法,今天我們就為我們的業(yè)主解決了這兩個顧慮。業(yè)主也是非常喜歡現代簡約風格,大玻璃,簡潔的線條,干凈清爽的外立面,室內大平層布局,特別舒適愜意。我們提出了內天溝加坡屋頂的方案,保證外立面的現代風格不受破壞,同時也解決了上面這兩個問題,露臺部分則鋪隔熱磚來解決夏天熱的問題。
本項目總建筑面積318.24㎡,其中一層建筑面積為164.40㎡,二層建筑面積為153.84㎡。

▲鳥瞰圖
戶型設計

▲一層平面圖
一層:門廊、外廊、堂屋、后門廳、客廳、公衛(wèi)、廚房、餐廳、兩臥室共享一衛(wèi)、室外平臺;

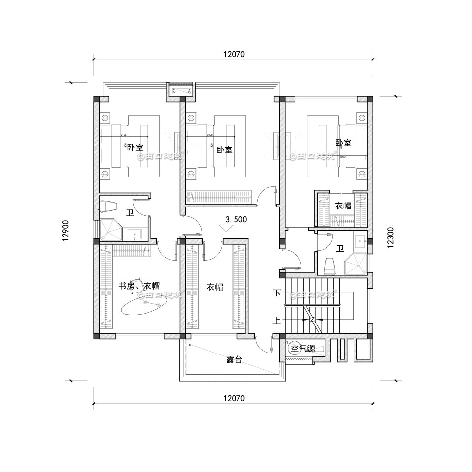
▲二層平面圖
二層:兩套房(帶衛(wèi)、衣帽,其中一個帶書房陽臺)、露臺;
造型設計

▲東北角鳥瞰圖

▲西南角鳥瞰圖

▲正立面透視圖

▲西北角透視圖

▲東北角透視圖

▲西南角透視圖

▲門廊透視圖
END