項目概況
好山好水難求,此房正好背山,且前方有水庫,位置之好著實讓人項目,整體環(huán)境隱秘幽靜,雨天后還會有稍許霧氣縈繞。
本項目總建筑面積553.06㎡,其中一層建筑面積為148.14㎡,二層建筑面積為124.18㎡,三層建筑面積96.41㎡,地下室建筑面積為184.33㎡。

▲鳥瞰圖
戶型設計

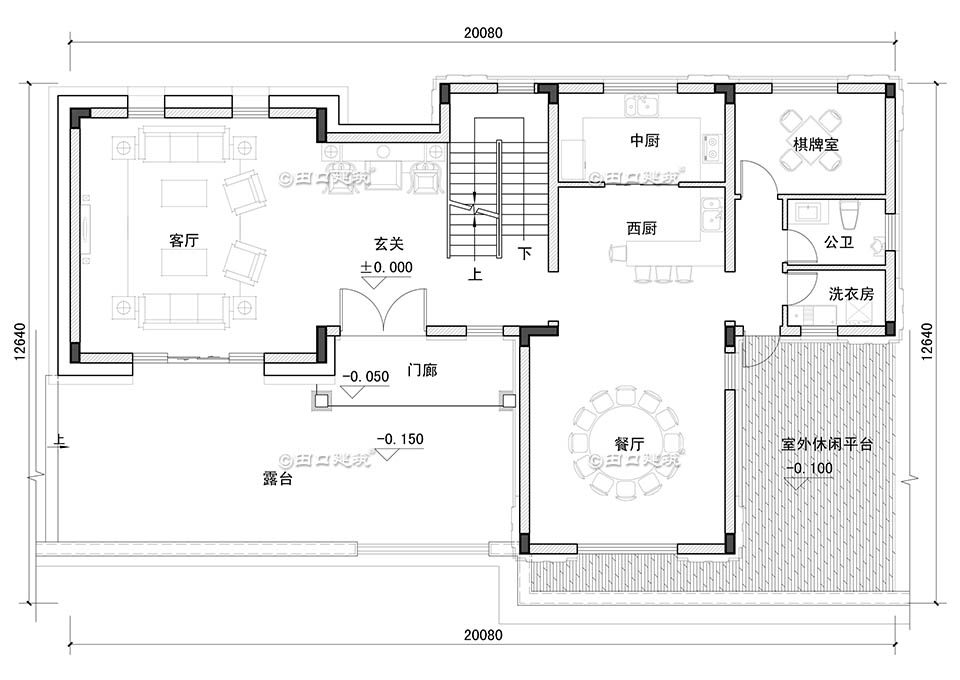
▲一層平面圖
一層:門廊、玄關、客廳、餐廳、中西廚、公衛(wèi)、洗衣房、棋牌室;

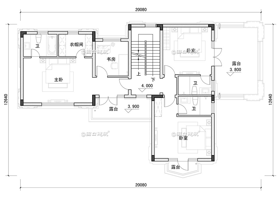
▲二層平面圖
二層:三套房(帶衛(wèi),其中一個帶書房、衣帽間、陽臺);
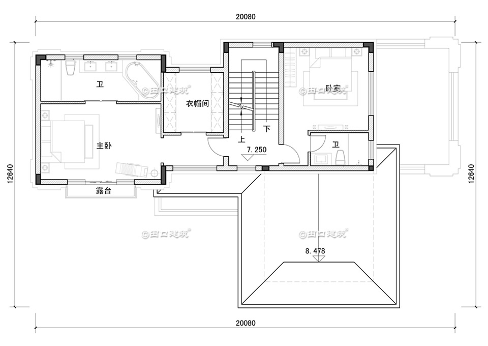
▲三層平面圖
三層:兩套房(帶衛(wèi)、其中一個帶衣帽間);

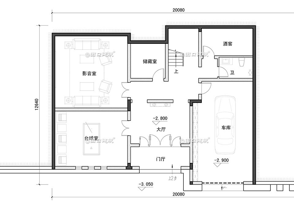
▲地下室平面圖
地下室:門廳、大廳、影音室、臺球室、車庫、酒窖、儲藏室、衛(wèi);
造型設計

▲西南角鳥瞰圖

▲東北角鳥瞰圖

▲南立面透視圖

▲西南角透視圖

▲院子入口透視圖

▲東南角透視圖

▲院子東南角小鳥瞰圖

▲院內西南角透視圖

▲一層院子透視圖
END